









Opis nieruchomości
Przytulne mieszkanie na Zielonych Wzgórzach
Przedmiot oferty: Mieszkanie na sprzedaż
Lokalizacja: Zielone Wzgórza, Białystok
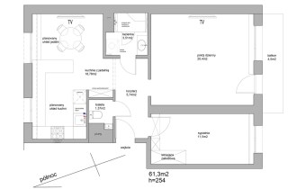
Powierzchnia: 61,3 m²
Zapraszamy do zapoznania się z ofertą przestronnego mieszkania 2-pokojowego zlokalizowanego w spokojnej dzielnicy Zielone Wzgórza przy ulicy Alei Niepodległości . To doskonała propozycja zarówno dla rodzin, jak i par szukających swojego miejsca na ziemi!
Dlaczego warto?
✅ Idealne piętro – mieszkanie znajduje się na 2. piętrze w 3-piętrowym bloku, co zapewnia wygodę
✅ Funkcjonalny układ – 2 przestronne pokoje, które można dowolnie zaaranżować, oraz osobna kuchnia dająca komfort mieszkańcom.
✅ Blok po termomodernizacji – budynek w technologii płyty został ocieplony, co zapewnia niskie koszty ogrzewania i estetyczny wygląd elewacji.
✅ Świetna lokalizacja – Zielone Wzgórza to zielona, spokojna dzielnica z pełnym zapleczem usługowym: sklepy, szkoły, przedszkola oraz tereny rekreacyjne są na wyciągnięcie ręki.
-korytarz (odświeżany w 2022 i 2024)
-toaleta (teraz była remontowana )
-kuchnia (jesień 2024), połączona została z drugim pokojem, co dało światło i przestrzeń w mieszkaniu.
Nie ma mebli kuchennych, płytki położone na podłodze, rozprowadzona elektryka, zmieniona hydraulika i instalacja gazowa, zamontowany został osprzęt elektryczny, lampy, wygładzone i odmalowane ściany.
Stare parapety nie były usuwane, maja być podporą/wzmocnieniem dla nowego blatu kuchennego.
Dodatkowo właściciel udostępni projekt kuchni lub może pomóc zaprojektować nową.
Do odświeżenia dwa pokoje, nie były remontowane - sypialnia i pokój dzienny
Piwnica przynależna do mieszkania. Balkon z widokiem na spokojną zieloną okolicę i niską zabudowę jednorodzinną.
To mieszkanie to świetna okazja dla osób szukających lokum w atrakcyjnej lokalizacji. Duża przestrzeń, spokojne sąsiedztwo i pełna infrastruktura sprawiają, że jest to miejsce, w którym każdy poczuje się jak w domu!
Zapraszamy do kontaktu w celu umówienia się na prezentację!